PROJECTS
Transforming Kingston’s Memorial Gardens into an inclusive, heritage-led space for reflection, connection, and community events.
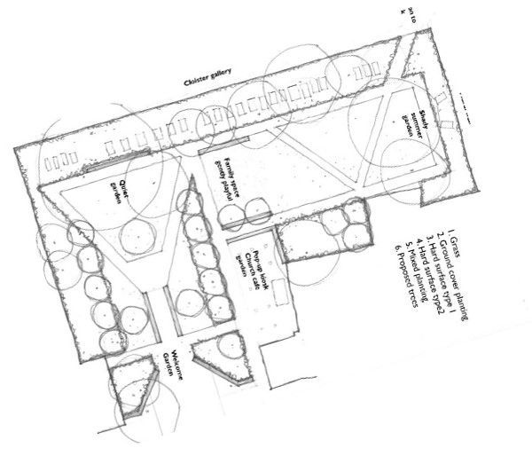
Kingston Memorial Gardens
Davies White Ltd were appointed by Kingston Council and Kingston First to lead RIBA Stages 1–4 for the redesign of Memorial Gardens, Kingston town centre’s largest green space. Our proposals aim to respect its historic, consecrated setting while reimagining the gardens as an inclusive, welcoming space that improves connectivity, safety, accessibility, and civic life in this culturally significant location.

The redesigned gardens will include enhanced green infrastructure, accessible paths, seating, event space, feature lighting, and layered planting. Now approved with full planning permission the scheme is due to start on site in Autumn 2025. It forms part of the wider ‘Happy Spaces’ public realm programme; unlocking heritage-led regeneration at the heart of this ancient royal borough.
Completed: 2023
Client: Kingston Council & Kingston Kingston First
Budget: £600K
Building on workshops first held in 2021, we used a co-design approach shaped by in-person and online engagement with residents, schools, businesses, and local organisations. Activities included design charrettes, mapping, planting feedback and sketching exercises. Community voices helped inform key principles: commemorative integrity, improved pedestrian flow, inclusive access, and opportunities to pause, reflect, gather, or celebrate.























